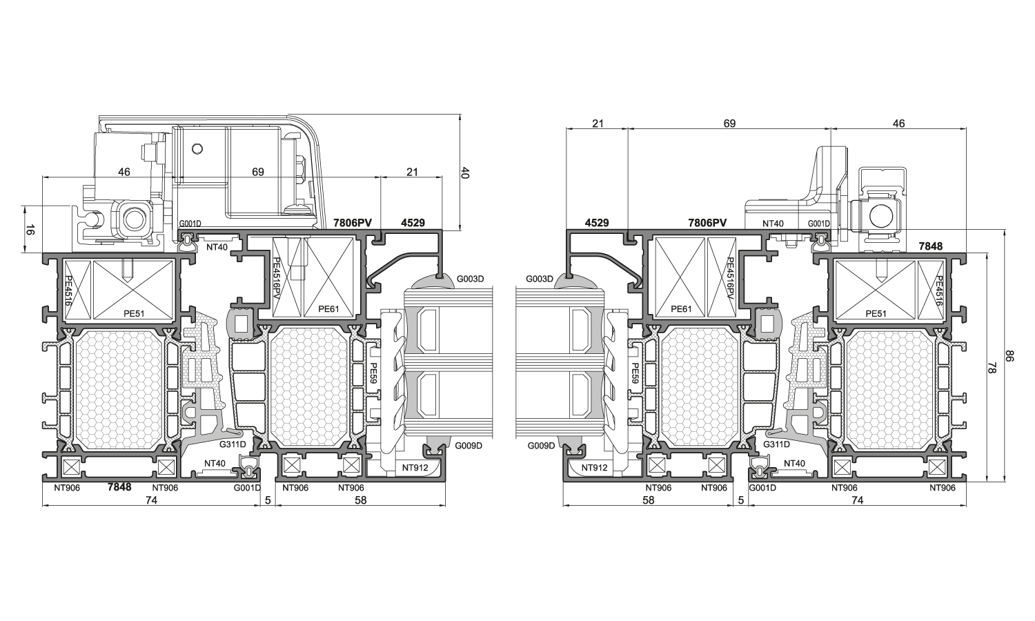
Ein fortschrittliches System mit einer Dreikammer-Profilstruktur mit sehr guten Isoliereigenschaften.
- Der Kipp-Schiebe-Beschlag ermöglicht die Herstellung großformatiger Türblätter: L = 1650 mm, H = 2336 mm
- Bautiefe der Profile: Bei Türzargen beträgt sie 78 mm und bei Türblättern 86 mm
- Eine optimierte thermische Trennung von 42 mm und eine Zweikomponenten-Mitteldichtung garantieren hohe thermische Parameter
- Möglichkeit, Fensterflügel bündig mit dem Rahmen abzuschließen (eine Ebene auf der Außenseite)
- maximales Flügelgewicht bis 160 kg
- viele Eckverbindungsmöglichkeiten
- Dichtungen aus EPDM-Synthesekautschuk
- Das System verfügt je nach verwendeten Dämmeinlagen über verschiedene Varianten: PE78N+, PE78NHI, PE78NHI+

