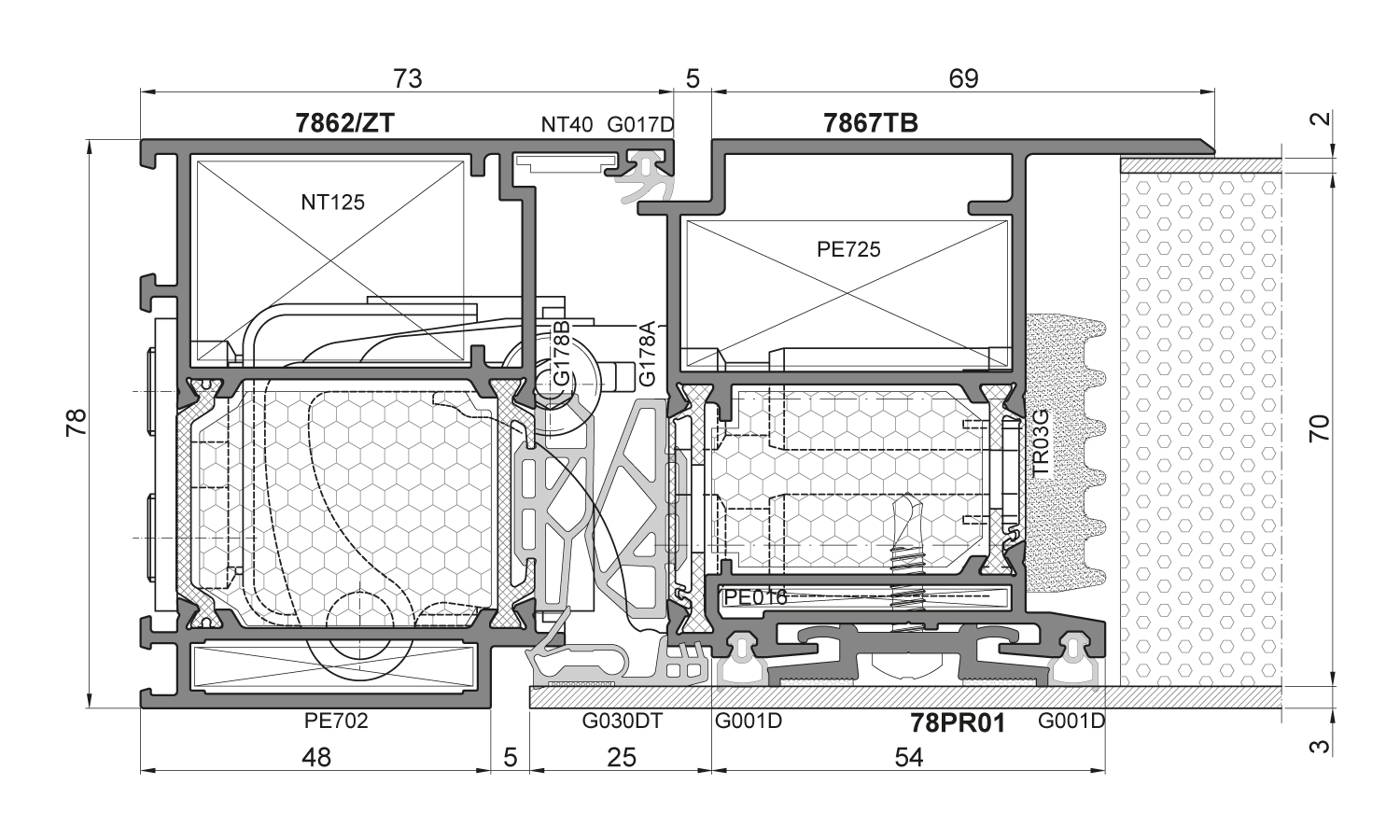
Ein wärmeisoliertes Dreikammersystem zur Herstellung von Türkonstruktionen.
- Konstruktion von koplanaren Profilen (Falzluft – 18 mm)
- Glasleisten für die Nut im Euro-Standard
- profilierte Wärmedämmung, 34 mm breit
- Einfache Verbindung der Tür mit der Vitrine durch speziell entwickelte, kompatible Profile
- Türblätter bündig mit der Zarge abschließen
- Möglichkeit der Herstellung großformatiger Strukturen
- viele Eckverbindungen
- große Freiheit bei der Auswahl verschiedener Beschlagarten
- verschiedene Varianten der Wärmedämmung, abhängig von den verwendeten Dämmeinlagen: PE78N+, PE78NHI, PE78NHI+


