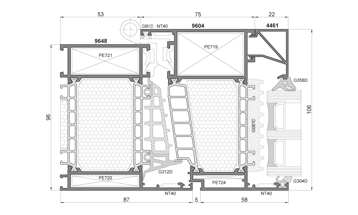
Ein System mit einem Dreikammer-Profilaufbau mit einer Beschlagnut im Euro-Standard. Es ist für den Bau von Fenstern mit sehr hohen Anforderungen an die Wärmedämmung bestimmt.
- Eine hohe Wärmedämmung wird durch Mehrkammer-Wärmedämmungen mit einer Breite von 62 mm und einer Zweikomponenten-Mitteldichtung gewährleistet
- Möglichkeit der Herstellung großformatiger Strukturen
- Möglichkeit, Fensterflügel bündig mit dem Rahmen abzuschließen (eine Ebene auf der Außenseite)
- viele Eckverbindungsmöglichkeiten
- Glasleisten mit einer Höhe von 22 mm und 28 mm

