Das System ist für den Aufbau von Lichtvorhangwänden und anderen räumlichen Strukturen bestimmt.
- Von außen eine gleichmäßige, glatte Glaswand, geteilt durch eine Struktur aus vertikalen und horizontalen Linien, 22 mm breit bei Verwendung einer Silikonfuge bzw. 28 mm bei Verwendung einer Dichtung im Scheibenzwischenraum
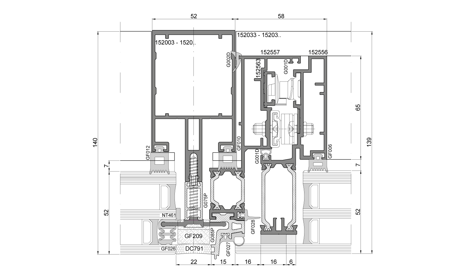
- Pfosten-Riegel-Tragkonstruktion des Systems Ponzio PF152 mit einer breiten Palette an Profilen
- Möglichkeit der Verwendung von Füllungen in Form von Ponzio-Fenstern
- Möglichkeit, Kippfenster nebeneinander zu installieren, die sich unabhängig voneinander öffnen lassen
- Möglichkeit der Verwendung von Dreifachverglasungen (bis zu einer Glasdicke von 70 mm)
- Profilbiegen

