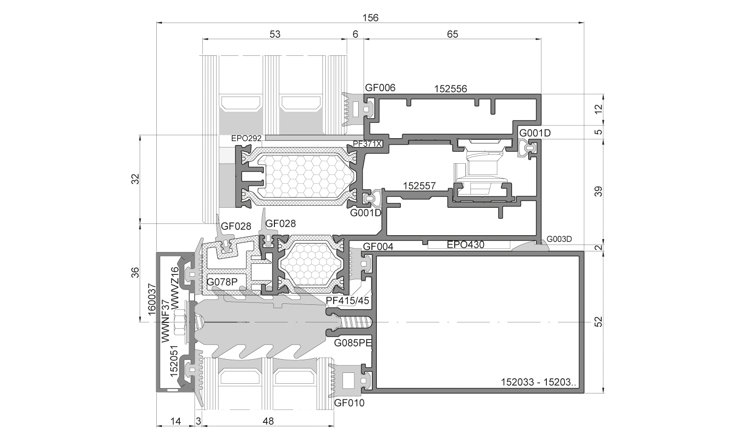
Ein System aus Pfosten-Riegel-Konstruktionen zum Bau von Vorhangfassaden, Dächern und Oberlichtern mit erhöhter Wärmedämmung.
Merkmal
- hohe Wärme- und Schalldämmung, Wasserdichtigkeit und Windlastbeständigkeit
- Ponzio PF152HI PASSIV-Variante – mit höchster Wärmedämmung (Zertifikat des Passivhaus Instituts Darmstadt, phA-Klasse)
- Lösungen mit Stahl- und Holzunterkonstruktion
- Lösungen für Sturz und Fensterbankleiste mit EI60-Feuerdichtheit und Isolierung
- Standardbreite der äußeren Abdeckstreifen – 51 mm
- Freiheit bei der Gestaltung der Fassade hinsichtlich Geometrie und Farbe
- verschiedene Arten von externen dekorativen Elementen
- Version „horizontale oder vertikale Linie“.
- Profilbiegen
- Möglichkeit der Verwendung von Füllungen in Form von Ponzio-Fenstern
- maximales Glasgewicht 700 kg
- Verbindung mit anderen Ponzio-Systemen

