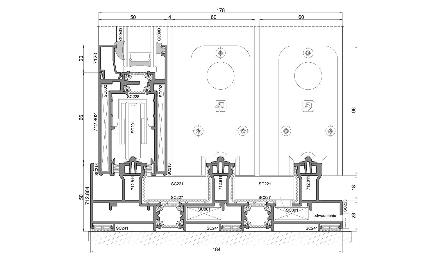
Wärmegedämmtes System für den Bau von Hebe-Schiebe-Elementen im Außenbereich, z. B. Verkleidungen für Balkone und Loggien.
Merkmal
- enge Verbindung mit anderen Ponzio-Systemen
- Möglichkeit, eine Struktur mit niedriger Schwelle zu schaffen
- Türrahmen: 2 – 4 Bahnen

