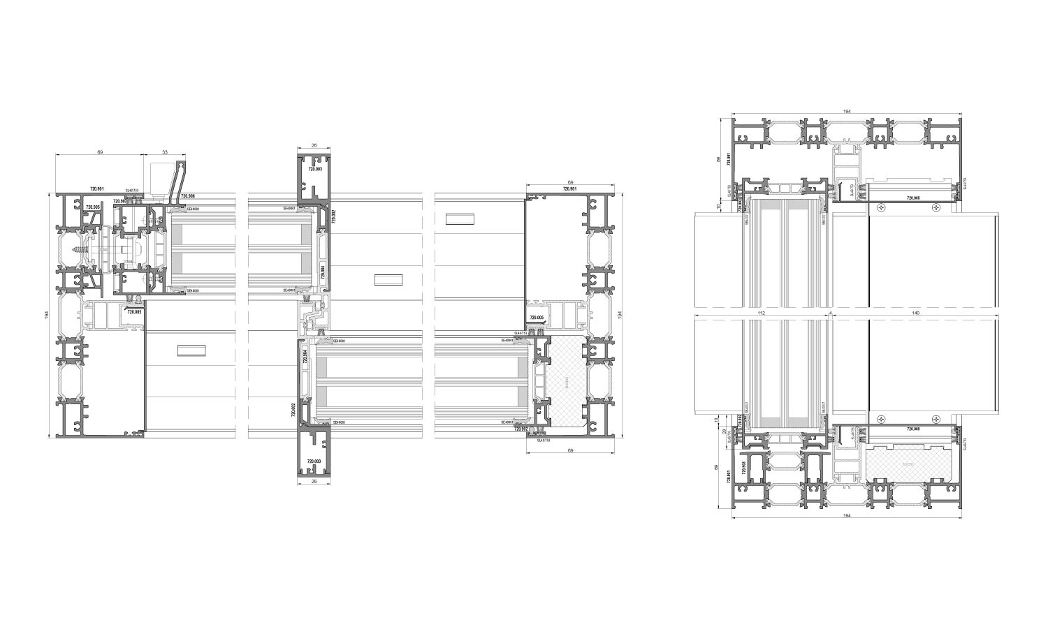
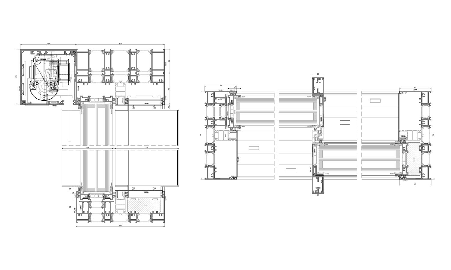
Schiebetürsystem, das die Verwendung sehr großer Abmessungen ermöglicht. Eine Struktur, in der nur schmale Pfosten sichtbar sind. Es vermittelt den Eindruck, möglichst transparent zu sein.
- schwellenfreier Durchgang vom Haus zur Terrasse
- Maximaler Zugang zum Tageslicht
- Ästhetisches Erscheinungsbild der Struktur dank der minimalen Breite des Mittelpfostens von 26 mm
- unbegrenzte Breite der gesamten Struktur
- Durch den Einsatz von 3 Reihen thermischer Trennung erreichen wir eine sehr gute Wärmedämmung
- Möglichkeit der Verwendung eines automatischen Antriebs
- Möglichkeit der Verwendung einer Mehrpunktverriegelung
- Vertikalprofile – Flügel schließen vollständig mit dem Rahmenprofil ab
- Horizontale Profile – sichtbarer Teil beträgt 10 mm


