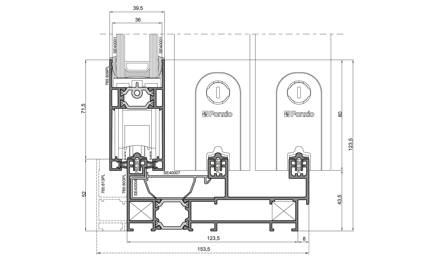
Das System ist für die Herstellung von wärmegedämmten Schiebefenstern oder Schiebesegmenten für Außenbebauungselemente, z. B. Balkone und Loggien, bestimmt.
- Mindestbreite des Mittelpfostens 37 mm – Schlankheit und Steifigkeit der Struktur
- Beschläge für das Ponzio-System
- Sitz- und Bürstendichtungen
- enge Verbindung mit anderen Ponzio-Systemen
- Möglichkeit, Eckverbindungen im 90°- oder 45°-Winkel herzustellen
- Möglichkeit der Verwendung spezieller Beschläge zur Herstellung vertikal verschiebbarer Futterfenster
- Lösung versteckt in der Wand

