Zum Inhalt springen
FIRKUS
Startseite
Fassaden
Türen und Fenster
Menü umschalten
Fenster
Tür
Brandschutz
Schiebetüren
Projekte
Zitat
Kontakt
FIRKUS
Main Menu
Startseite
Fassaden
Türen und Fenster
Menü umschalten
Fenster
Tür
Brandschutz
Schiebetüren
Projekte
Zitat
Kontakt
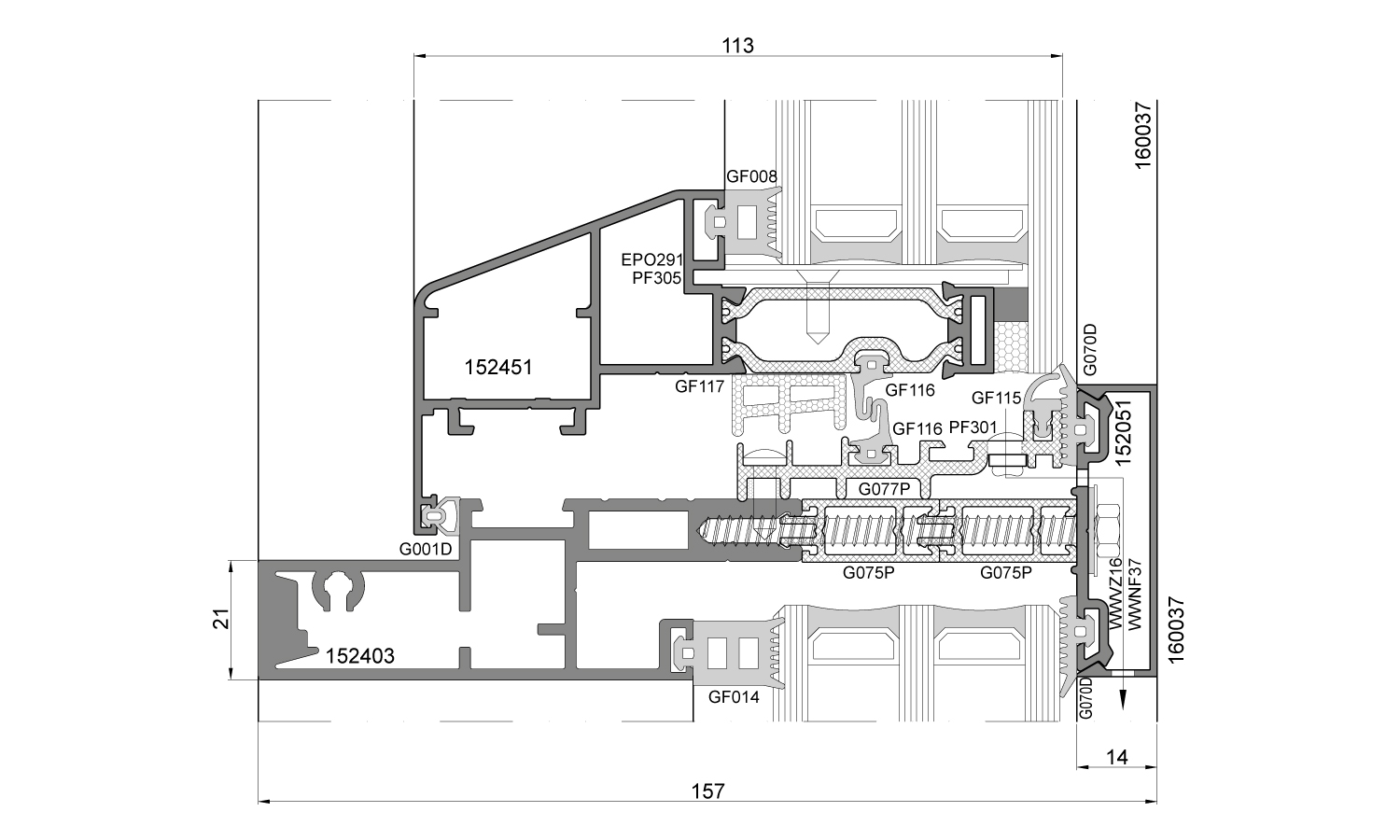
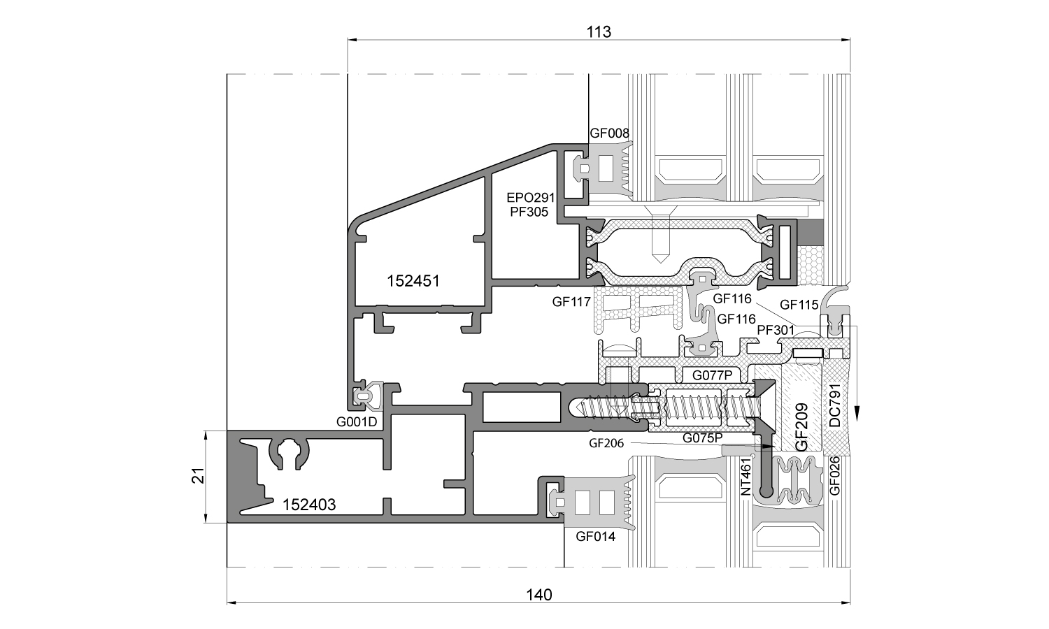
Ponzio PF152IW
Nach oben scrollen