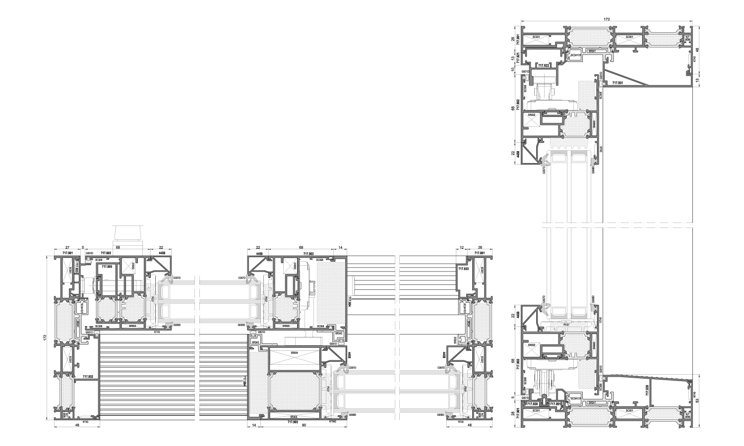
Ein wärmeisoliertes Schiebesystem mit Türdichtung zur Herstellung von Außenbauelementen.
Merkmal
- Schließart analog zu Flügelfenstern – hohe Dichtigkeit gegenüber Witterungseinflüssen
- Keine vertikale Reibung beim Bewegen des Flügels durch Öffnung um 8 mm
- Die Bautiefe der Profile beträgt beim Türblatt 78 mm und bei der Zarge 172 mm
- Das System (Ponzio SL1700TT) ermöglicht den Bau von Konstruktionen nach Schema A (ein Schiebeflügel, feste Verglasung im Rahmen) und Schema C (zwei Schiebeflügel, feste Verglasung im Rahmen)

